Deze publicatie maakt gebruik van cookies

We gebruiken functionele en analytische cookies om onze website te verbeteren. Daarnaast plaatsen derde partijen tracking cookies om gepersonaliseerde advertenties op social media weer te geven. Door op accepteren te klikken gaat u akkoord met het plaatsen van deze cookies.

Stel je voor: een moderne bedrijfsruimte die helemaal aansluit bij jouw ambities. De Poort van Offenbeek, gelegen aan de strategische Keulseweg in Reuver, biedt precies die mogelijkheid. Dit unieke project omvat tien hoogwaardige bedrijfsunits die speciaal zijn ontworpen om kleine ondernemers te ondersteunen bij hun groei. Hier vind je een perfecte combinatie van betaalbaarheid, duurzaamheid en flexibiliteit.

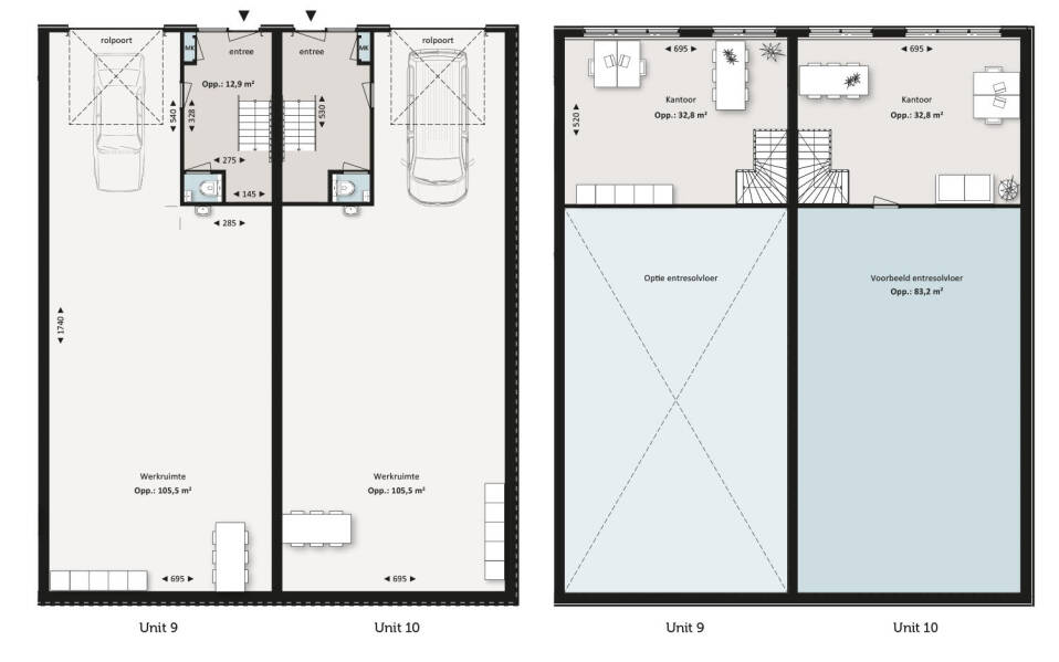
De tien bedrijfsunits variëren in oppervlakte van 79 m² tot 121 m² en zijn allemaal uitgerust met een entresol van 32 m² tot 35 m². Indien gewenst kan de entresol tegen meerprijs worden uitgebreid. Iedere bedrijfsunit is middels een elektrisch bedienbare poort toegankelijk en beschikt over twee eigen parkeerplaatsen. De units worden casco opgeleverd.

De Poort van Offenbeek is uitstekend bereikbaar, zowel per auto als met openbaar vervoer. Gelegen nabij de A73 is de locatie ideaal voor regionale en internationale verbindingen. Medewerkers, klanten en leveranciers bereiken het bedrijventerrein eenvoudig, snel en comfortabel.

Rondom de bedrijfsunits is ruime parkeergelegenheid aanwezig, waardoor parkeren geen probleem vormt voor zowel medewerkers als bezoekers.

Kortom: een locatie waar bereikbaarheid en gemak hand in hand gaan, zodat jouw onderneming optimaal kan functioneren en groeien.

Nieuwsgierig naar de mogelijkheden voor jouw bedrijf? Een uitgebreide brochure van dit project is op aanvraag verkrijgbaar. Liever een persoonlijke afspraak? Neem contact op met Hans van Wijlick van A75 Makelaardij en hij spreekt alles met je door.

Het project gaat verder dan alleen ruimte bieden. Hier creëer je een plek waar je klanten professioneel ontvangt, waar je team comfortabel kan werken en waar je onderneming de mogelijkheid krijgt om te groeien. Dankzij de centrale ligging tussen Venlo en Roermond, de nabijheid van de A73 en internationale verbindingen, ben je altijd optimaal bereikbaar.

Stap in De Poort van Offenbeek en geef jouw bedrijf de plek die het verdient.

Elke unit is met oog voor detail ontworpen: een moderne, eigentijdse architectuur zorgt voor een representatieve uitstraling, terwijl de praktische indeling het mogelijk maakt om efficiënt en prettig te werken. Of je nu een productiebedrijf runt, opslagruimte nodig hebt, een creatieve werkplek wilt of een kleinschalig kantoor zoekt, De Poort van Offenbeek biedt de juiste omgeving voor uiteenlopende bedrijfsactiviteiten.

Je opent de deur van jouw eigen bedrijfsruimte. Het frisse licht valt naar binnen, de geur van nieuw hangt nog in de lucht. Aan de voorkant staat je logo zichtbaar op de gevel – klanten vinden je meteen en stappen met vertrouwen binnen.

Binnen heb je alles naar wens ingericht: een nette ontvangstruimte waar je trots jouw werk presenteert, een kantoor waar je in alle rust plannen smeedt, en een werkplaats of opslag die precies aansluit bij jouw dagelijkse praktijk. Alles onder één dak, alles van jou.

In De Poort van Offenbeek is dit geen droom, maar werkelijkheid. De tien bedrijfsunits bieden jou de kans om je bedrijf de ruimte te geven die het verdient. Representatief, praktisch én toekomstbestendig.

Zie jij jezelf hier al zitten? In je eigen bedrijfspand? Klaar voor groei?

Een moderne uitstraling die gezien mag worden

Jouw ruimte, jouw mogelijkheden

Bedrijfsunits

Goed bereikbaar en veel ruimte, met eigen P-plaats voor de deur

Jouw onderneming verdient de juiste ruimte

Zie jij je hier al zitten?

Droom jij van een mooie bedrijfsruimte?

Ben je begonnen in de garage aan huis en merk je dat je nu écht toe bent aan een professionele, zelfstandige bedrijfsruimte? Dan is dit hét moment om de volgende stap te zetten. De Poort van Offenbeek biedt je deze kans. Hier komen tien moderne bedrijfsunits beschikbaar. Dé perfecte stap voor ondernemers die hun bedrijf willen laten groeien en klanten willen ontvangen in een representatieve omgeving.

Ben jij klaar om met jouw bedrijf de volgende stap te zetten?

Deel deze pagina:

Het terrein zelf is ruim en overzichtelijk ingericht met voldoende parkeergelegenheid voor elke ondernemer. Overheaddeuren en een logische indeling maken laden en lossen eenvoudig en efficiënt. Een praktische oplossing voor ondernemers die dagelijks te maken hebben met logistieke processen.

Ook de omgeving speelt mee: de ligging aan de entree van Offenbeek, nabij het spoor, en de terreininrichting geven het geheel een verzorgde en prettige uitstraling. Zo ontstaat een werkomgeving die zowel functioneel als inspirerend is.

De Poort van Offenbeek is niet zomaar een verzameling bedrijfsunits; het is een moderne ondernemerslocatie waar je met trots je naam op de gevel zet. Een plek die klanten vertrouwen inboezemt en waar medewerkers zich graag laten zien.

De bedrijfsunits van De Poort van Offenbeek zijn ontworpen met een heldere visie: een plek creëren waar ondernemerschap en uitstraling samenkomen. Het exterieur ademt moderniteit, professionaliteit en toegankelijkheid. Een visitekaartje voor jouw bedrijf.

De gevels combineren duurzame materialen met een strakke en tijdloze architectuur. De neutrale, stijlvolle kleuren zorgen ervoor dat elke unit zijn eigen identiteit kan krijgen, terwijl het geheel een uniforme en representatieve uitstraling behoudt.

Grote raampartijen laten het daglicht royaal binnenstromen en zorgen voor een open en uitnodigende sfeer. Dit maakt de units niet alleen aantrekkelijk van buiten, maar ook prettig om in te werken.

De units zijn gelegen aan de Keulseweg, een toegangsweg met een rijke historie die nauw verbonden is met de voormalige klei-industrie van Offenbeek. Deze historische context geeft het project een extra dimensie en maakt het een bijzondere plek om jouw onderneming te vestigen.

Nieuwsgierig naar de mogelijkheden voor jouw bedrijf? Een uitgebreide brochure van dit project is op aanvraag verkrijgbaar. Liever een persoonlijke afspraak? Neem contact op met Hans van Wijlick van A75 Makelaardij en hij spreekt alles met je door.

De tien bedrijfsunits variëren in oppervlakte van 79 m² tot 121 m² en zijn allemaal uitgerust met een entresol van 32 m² tot 35 m². Indien gewenst kan de entresol tegen meerprijs worden uitgebreid. Iedere bedrijfsunit is middels een elektrisch bedienbare poort toegankelijk en beschikt over twee eigen parkeerplaatsen. De units worden casco opgeleverd.

Bedrijfsunits

De Poort van Offenbeek is uitstekend bereikbaar, zowel per auto als met openbaar vervoer. Gelegen nabij de A73 is de locatie ideaal voor regionale en internationale verbindingen. Medewerkers, klanten en leveranciers bereiken het bedrijventerrein eenvoudig, snel en comfortabel.

Rondom de bedrijfsunits is ruime parkeergelegenheid aanwezig, waardoor parkeren geen probleem vormt voor zowel medewerkers als bezoekers.

Kortom: een locatie waar bereikbaarheid en gemak hand in hand gaan, zodat jouw onderneming optimaal kan functioneren en groeien.

Het project gaat verder dan alleen ruimte bieden. Hier creëer je een plek waar je klanten professioneel ontvangt, waar je team comfortabel kan werken en waar je onderneming de mogelijkheid krijgt om te groeien. Dankzij de centrale ligging tussen Venlo en Roermond, de nabijheid van de A73 en internationale verbindingen, ben je altijd optimaal bereikbaar.

Stap in De Poort van Offenbeek en geef jouw bedrijf de plek die het verdient.

Elke unit is met oog voor detail ontworpen: een moderne, eigentijdse architectuur zorgt voor een representatieve uitstraling, terwijl de praktische indeling het mogelijk maakt om efficiënt en prettig te werken. Of je nu een productiebedrijf runt, opslagruimte nodig hebt, een creatieve werkplek wilt of een kleinschalig kantoor zoekt, De Poort van Offenbeek biedt de juiste omgeving voor uiteenlopende bedrijfsactiviteiten.

Stel je voor: een moderne bedrijfsruimte die helemaal aansluit bij jouw ambities. De Poort van Offenbeek, gelegen aan de strategische Keulseweg in Reuver, biedt precies die mogelijkheid. Dit unieke project omvat tien hoogwaardige bedrijfsunits die speciaal zijn ontworpen om kleine ondernemers te ondersteunen bij hun groei. Hier vind je een perfecte combinatie van betaalbaarheid, duurzaamheid en flexibiliteit.

Het terrein zelf is ruim en overzichtelijk ingericht met voldoende parkeergelegenheid voor elke ondernemer. Overheaddeuren en een logische indeling maken laden en lossen eenvoudig en efficiënt. Een praktische oplossing voor ondernemers die dagelijks te maken hebben met logistieke processen.

Ook de omgeving speelt mee: de ligging aan de entree van Offenbeek, nabij het spoor, en de terreininrichting geven het geheel een verzorgde en prettige uitstraling. Zo ontstaat een werkomgeving die zowel functioneel als inspirerend is.

De Poort van Offenbeek is niet zomaar een verzameling bedrijfsunits; het is een moderne ondernemerslocatie waar je met trots je naam op de gevel zet. Een plek die klanten vertrouwen inboezemt en waar medewerkers zich graag laten zien.

Een moderne uitstraling die gezien mag worden

De bedrijfsunits van De Poort van Offenbeek zijn ontworpen met een heldere visie: een plek creëren waar ondernemerschap en uitstraling samenkomen. Het exterieur ademt moderniteit, professionaliteit en toegankelijkheid. Een visitekaartje voor jouw bedrijf.

De gevels combineren duurzame materialen met een strakke en tijdloze architectuur. De neutrale, stijlvolle kleuren zorgen ervoor dat elke unit zijn eigen identiteit kan krijgen, terwijl het geheel een uniforme en representatieve uitstraling behoudt.

Grote raampartijen laten het daglicht royaal binnenstromen en zorgen voor een open en uitnodigende sfeer. Dit maakt de units niet alleen aantrekkelijk van buiten, maar ook prettig om in te werken.

De units zijn gelegen aan de Keulseweg, een toegangsweg met een rijke historie die nauw verbonden is met de voormalige klei-industrie van Offenbeek. Deze historische context geeft het project een extra dimensie en maakt het een bijzondere plek om jouw onderneming te vestigen.

Zie jij je hier al zitten?

Deel deze pagina:

Jouw onderneming verdient de juiste ruimte

Goed bereikbaar en veel ruimte, met eigen P-plaats voor de deur

Jouw ruimte, jouw mogelijkheden

Je opent de deur van jouw eigen bedrijfsruimte. Het frisse licht valt naar binnen, de geur van nieuw hangt nog in de lucht. Aan de voorkant staat je logo zichtbaar op de gevel – klanten vinden je meteen en stappen met vertrouwen binnen.

Binnen heb je alles naar wens ingericht: een nette ontvangstruimte waar je trots jouw werk presenteert, een kantoor waar je in alle rust plannen smeedt, en een werkplaats of opslag die precies aansluit bij jouw dagelijkse praktijk. Alles onder één dak, alles van jou.

In De Poort van Offenbeek is dit geen droom, maar werkelijkheid. De tien bedrijfsunits bieden jou de kans om je bedrijf de ruimte te geven die het verdient. Representatief, praktisch én toekomstbestendig.

Zie jij jezelf hier al zitten? In je eigen bedrijfspand? Klaar voor groei?

Droom jij van een mooie bedrijfsruimte?

Ben je begonnen in de garage aan huis en merk je dat je nu écht toe bent aan een professionele, zelfstandige bedrijfsruimte? Dan is dit hét moment om de volgende stap te zetten. De Poort van Offenbeek biedt je deze kans. Hier komen tien moderne bedrijfsunits beschikbaar. Dé perfecte stap voor ondernemers die hun bedrijf willen laten groeien en klanten willen ontvangen in een representatieve omgeving.

Ben jij klaar om met jouw bedrijf de volgende stap te zetten?

Voor meer informatie over Bike Totaal Belfeld: www.biketotaalbelfeld.nl